
Mathieu REVERDIN
Planifier une visite
06 24 90 16 11
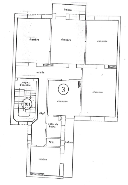
Au 2ᵉ étage d’un immeuble cossu de style néo-renaissance, sans ascenseur, en plein coeur de la Neustadt, découvrez ce spacieux appartement de 5 pièces offrant un fort potentiel de réaménagement.
Il se compose de trois belles pièces de vie en enfilade, baignées de lumière, dont l’une s’ouvre sur un balcon côté rue. Ces espaces généreux peuvent être conservés en pièces à vivre ou transformés en chambres selon vos besoins.
Un couloir central dessert l’ensemble du logement : salle de bains, cuisine équipée indépendante, WC séparé et deux chambres. Un second balcon/coursive, côté cour, relie une chambre et la cuisine, permettant de profiter d’un passage extérieur agréable.
Deux caves viennent compléter ce bien.
Double vitrage dans toutes les pièces.
Parquet dans les pièces de vie et les chambres à coucher.
Immeuble raccordé à la fibre
L'appartement se trouve au cœur de la Neustadt, entre les Halles, le parc du Contades et la place de la République et à proximité immédiate des accès autoroutiers de la place de Haguenau.
Plusieurs arrêts de tramway B C E F se trouvent à moins de 500m.
Les atouts :
- De beaux volumes et une distribution flexible,
- Deux balcons offrant des extérieurs appréciables et des expositions différentes,
- Un immeuble de caractère,
- Appartement traversant
- Au centre ville de Strasbourg proche de toutes les commodités et transports
- Un appartement à rafraîchir, idéal pour laisser libre cours à vos envies d’aménagement.
Spécificités du bien
Nombre de pièces | 5 |
Nombre de chambres | 3 |
Surface | 127m² |
Surface du séjour | 20m² |
Type de cuisine | Indépendante |
Cuisine équipée | oui |
Année de construction | 1904 |
Étage de l'appartement | 2 |
Nombre d'étage dans l'immeuble | 5 |
Type de chauffage | Individuel gaz |
Production de l'eau chaude | Gaz |
Salle de bains | Oui |
Toilette séparé | Oui |
Balcons | 2 |
Cave | 2 |
Ascenseur | Non |
Parking / Garage | Non |
Local vélo | Non |
Taxe foncière | 1 224 € | |
Charges de copropriété mensuelles | 68 € | |
Quote-part moyenne du budget prévisionnel de charge annuel | 1 345 € | |
Nombre de lot copropriété | 14 | |
Nombre de lot d'habitation | 6 | |
Procédure en cours dans la propriété | Non | |
Prix du bien | 455 800 € | |
Prix du bien hors honoraires | 430 000 € | |
Honoraire charge acquéreur | Oui | |
Honoraires d'agence | 25 800 € | |
Montant estimé des dépenses annuelles d’énergie pour un usage standard | entre 1 800 € et 2 490 € | |
Prix moyen des énergies indexées (abonnements compris) | 2023 | |
Consommation énergie primaire (kWh/m²/an) | 156 | |
Consommation énergie finale (kWh/m²/an) | 151 |
DPE / Diagnostic de performance énergétique
GES / Gaz à effet de serre
Plan
